Poslovna zgrada Marvel

Poslovni objekat se sastoji od prizemlja, dva sprata i galerije. U skolpu ovog poslovnog objekta se izdaje samo prizemlje i prvi sprat.

Nalazi se u ulici Vojvode Radomira Putnika broj 34 (pored TC “Tom”). Objekat ima obezbjeđeno 20 parking mjesta, a po potrebi i podzeme garaže u susjednom objektu.

Sastoji se od dva zasebna ulaza. Na jednom od ulazu nalazi se atraktivan poslovni prostor, ukupne korisne površine 594,04m2 (Prizemlje 293,66m2 + Prvi sprat 300,38m2)

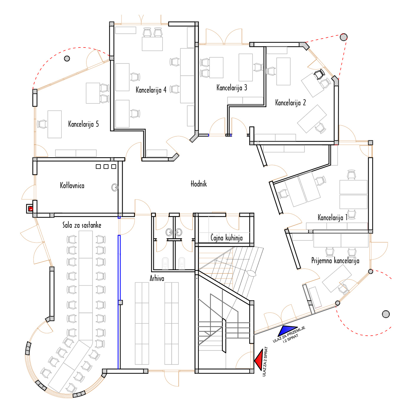
Osnova prizemljapovršina = 293,66 m2

Br.POSLOVNA ZGRADAP/m2koef.O/m/Obrada poda
1Hodnik55,831,0055,83Keramika
2Prijemna kancelarija15,011,0015,01Etison
3Kancelarija 120,651,0020,65Etison
4Server6,211,006,21Etison
5Kancelarija 224,021,0024,02Etison
6Kancelarija 315,881,0015,88Etison
7Kancelarija 432,601,0032,60Etison
8Kancelarija 523,751,0023,75Etison
9Kotlovnica14,541,0014,54Cem. estrih
10Sala za sastanke43,441,0043,44Etison
11Arhiva30,141,0030,14Etison
12Čajna kuhinja4,711,004,71Keramika
13 Toalet M+Ž6,881,006,88Keramika

Osnova 1. spratapovršina = 300,38 m2

Br.POSLOVNA ZGRADAP/m2koef.O/m/Obrada poda
1Hodnik50,951,0050,95Keramika
2Kancelarija 112,461,0012,46Etison
3Kancelarija 225,181,0025,18Etison
4Kancelarija 317,881,0017,88Etison
5Kancelarija 424,421,0024,42Etison
6Kancelarija 514,831,0014,83Etison
7Kancelarija 630,351,0030,35Etison
8Kancelarija 726,411,0026,41Etison
9Kancelarija 814,271,0014,27Etison
10Kancelarija 913,251,0013,25Etison
11Kancelarija 1029,111,0029,11Etison
12Kancelarija 1121,521,0021,52Etison
13 Hodnik8,611,008,61Etison
14Toalet M+Ž6,881,006,88Keramika
15Balkon 13,410,501,70Keramika
16Balkon 25,100,502,55Keramika

 

Datum izgradnje: 2008.
Lokacija: Vojvode Radomira Putnika broj 34, Istočno Novo Sarajevo