NOVI OBJEKAT U IZGRADNJI!
Na mapi ispod možete pogledati tačnu buduću lokaciju. Objekat će biti na atraktivnoj lokaciji u blizini Sportske dvorane Istočno Sarajevo, između tržnog centra TOM i tržnog centra Bingo
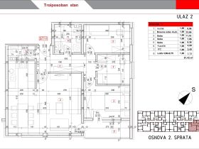
Spratnost objekta:
-podrum (garažna mjesta)
-prizemlje (garažna mjesta)
-8 spratova (stanovi)
Objekat će posjedovati lift, blindo vrata na stanovima, PVC fasadnu stolariju sa roletnama, hrastov parket I klase, kvalitetnu keramiku i etažno plinsko grijanje .
Objekat je energetski efikasan
