Stambeno-poslovni objekat sa garažama SP3 – LAMELA 5Osnova prizemlja
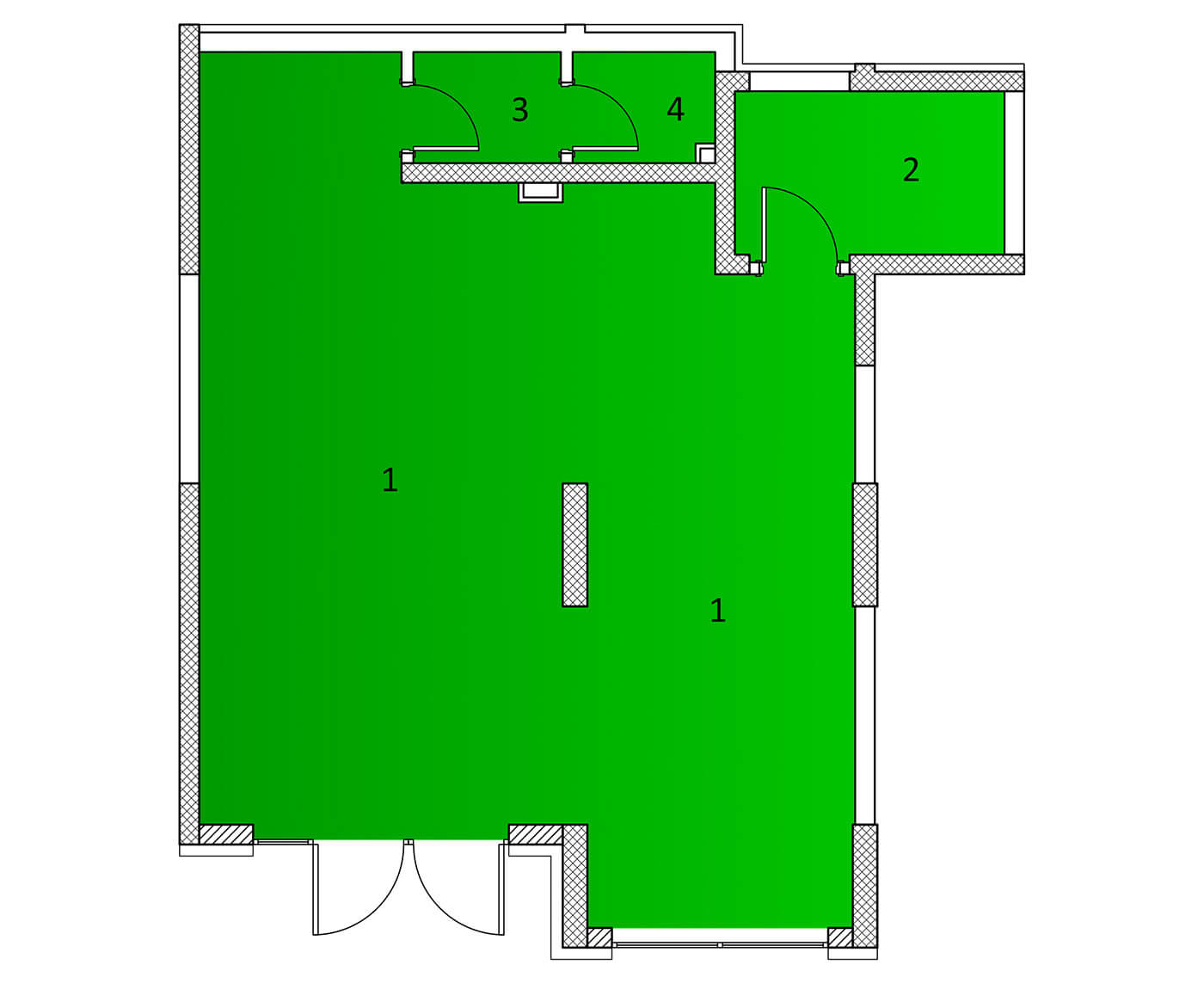
Poslovni prostor 1površina = 55,26 m2
| Broj | Prostorija | P m2 | koef. | Računska površina |
|---|
| 1 | Centralni dio | 47,41 | 1,00 | 47,41 |
| 2 | Ostava | 4,56 | 1,00 | 4,56 |
| 3 | WC predprostor | 1,69 | 1,00 | 1,69 |
| 4 | WC | 1,60 | 1,00 | 1,60 |
Poslovni prostor 2površina = 46,37 m2
| Broj | Prostorija | P m2 | koef. | Računska površina |
|---|
| 1 | Centralni dio | 42,80 | 1,00 | 42,80 |
| 2 | WC predprostor | 2,08 | 1,00 | 2,08 |
| 3 | WC | 1,49 | 1,00 | 1,49 |
Garaža 1površina = 19,07 m2
| Oznaka | Namjena | P m2 | koef. | Računska površina |
|---|
| G1 | Garaža | 19,07 | 1,00 | 19,07 |
Garaža 2površina = 17,43 m2
| Oznaka | Namjena | P m2 | koef. | Računska površina |
|---|
| G2 | Garaža | 17,43 | 1,00 | 17,43 |
Garaža 3površina = 18,02 m2
| Oznaka | Namjena | P m2 | koef. | Računska površina |
|---|
| G3 | Garaža | 18,02 | 1,00 | 18,02 |
Garaža 4površina = 20,67 m2
| Oznaka | Namjena | P m2 | koef. | Računska površina |
|---|
| G4 | Garaža | 20,67 | 1,00 | 20,67 |
Garaža 5površina = 17,55 m2
| Oznaka | Namjena | P m2 | koef. | Računska površina |
|---|
| G5 | Garaža | 17,55 | 1,00 | 17,55 |
Garaža 6površina = 19,47 m2
| Oznaka | Namjena | P m2 | koef. | Računska površina |
|---|
| G6 | Garaža | 19,47 | 1,00 | 19,47 |
Garaža 7površina = 20,95 m2
| Oznaka | Namjena | P m2 | koef. | Računska površina |
|---|
| G7 | Garaža | 20,95 | 1,00 | 20,95 |
Garaža 8površina = 18,24 m2
| Oznaka | Namjena | P m2 | koef. | Računska površina |
|---|
| G8 | Garaža | 18,24 | 1,00 | 18,24 |
Garaža 9površina = 18,24 m2
| Oznaka | Namjena | P m2 | koef. | Računska površina |
|---|
| G9 | Garaža | 18,24 | 1,00 | 18,24 |
Garaža 10površina = 20,30 m2
| Oznaka | Namjena | P m2 | koef. | Računska površina |
|---|
| G10 | Garaža | 20,30 | 1,00 | 20,30 |